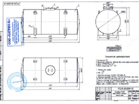
Объем : 15м3
Марки сталей: Ст3, 09Г2С, AISI 430, AISI304, 3
Резервуары изготавливаются из углеродистых и нержавеющих марок сталей по требованию заказчика.
Популярен для хранения воды, нефти, пищевых масел и бензина. Помимо этого, его можно использовать для траспортировки грузов по стране.
В стандартной конструкции резервуара предусмотрен люк-лаз с крышкой, два фланцевых патрубка, размер и расположение которых определяется в зависимости от потребностей клиента, металлические опоры, двухслойное лакокрасочное покрытие. По желанию заказчика, специалисты ООО «КАТРИН-К» могут оснастить резервуары дополнительными люками, клапанами и датчиками. К числу наиболее широко востребованного оборудования относятся:
- клапан отсечной поплавковый ОК-80;
- огнепреградитель ОП-50;
- люк замерный ЛЗ-150;
- дыхательный клапан СМДК-50;
- клапан обратный КП-50.
И иное оборудование.
Все наземные горизонтальные резервуары, изготовленные ООО «КАТРИН-К», выпускаются в соответствии с действующими ГОСТа ми и ТУ, а также имеют все необходимые сертификаты. Купить нержавеющие емкости можно у нас на сайте. Оставьте заявку и мы свяжемся с вами.









_320x200_78a.jpg)


_320x200_fea.png)
